旧広田家(納屋七)住宅
一階
二階
旧広田家(納屋七)住宅、彦根市指定文化財、景観重要建築物、歴史的風致形成建造物について 下に続く
彦根市には、彦根三十五万石の往時を偲ばせる古い町並みが、比較的よく残っています。白壁に紅殻格子、虫篭窓、二階の低い建物が通りに面して続いています。本町二丁目から三丁目を当時上魚屋町、城町一丁目を下魚屋町と呼び、約400mの間に40軒近い魚屋が軒を並べていたといわれます。本町二丁目には現在でも通りに面して井戸を残している家が数軒あります。城町一丁目にはこの界隈きっての大問屋納屋七があり、重厚な構えの家が残っています。市指定文化財となっている家が数軒あります。 彦根市観光協会 HPより
所有者:戸所新太郎は大津市在住、弟:岩雄が隣家で設計事務所”計画工房”を経営。曽祖父が長崎貿易で財をなし明治中期、当家を取得。戸所は群馬県高崎、前橋に多く古くは戸所甚内の名が群馬県の箕輪城主 長野信濃守在原業政の家臣録にある。長野氏の後、井伊家が箕輪城主になりその後、高崎城主になる。関ヶ原の戦功で井伊直政が高崎から彦根に移る。何かの縁で私の先祖も高崎から彦根へ移ったと想像される。井伊家水軍の拠点水主町(かこまち)の古地図に戸所の名前がある。
水軍の縁で長崎貿易を始めた? と想像している。
長崎貿易の商いも統制経済と長崎の8月の戦災で幕を閉じる。
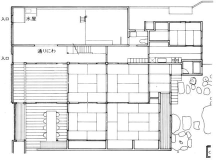
背面突出部の鬼瓦に安永7年(1778)の刻銘があることから、そのころに建築されたと推測される。建物は、魚屋が集中して居住していた旧下魚屋町の西端に位置しています。
主屋は、桁行7間半、梁間7間の切妻平入の建物となっている。
軒裏で梁の端部を腕木状にはね出し出桁を受ける構造となっているのが特徴であり、塗り込め、袖壁付の外観は構造材の太さとともに魚問屋にふさわしい重厚な構えを残し、城下町の歴史的景観を先導する建物です。
彦根市 HPより
